设备布置图是表达厂房建筑内外的设备之间、设备与建筑物之间的相对位置的图样。用以指导设备的安装、布置,并作为厂房建筑、管道布置设计的重要依据。
1 设备布置图的内容
根据设备布置图的作用,它必须包括以下内容:
(1)一组视图表示设备在厂房内外布置情况的平面图和剖面图等。
(2)尺寸图中要标注与设备定位有关的建筑物定位轴线的编号、设备支承点(POS)标高和设备管口的标高、设备的名称与位号等。图中尺寸的单位除标高及总平面图以米为单位外,其他尺寸均以毫米为单位。
(3)指北针图纸右上角表示安装方位的图标。
(4)标题栏注写单位名称、图名、图号、比例及签字、日期等。
(5)附注说明与设备安装有关的特殊要求,比如设备一览表、设备规格等。
2 设备布置图的画法
1)视图表示方法
① 比例与图幅
设备布置图需根据装置规模、设备尺寸及复杂程度合理选取比例,常用比例有1:20、1:50、1:100等。对于大型工业装置,因涵盖设备众多、区域广阔,多采用1:100比例,以便在图纸上完整呈现整体布局;而小型车间或局部精细布置区域,为清晰表达设备细节及安装要求,可能选用1:20或1:50的较大比例。比例的准确标注是确保施工人员按图精准施工的关键,需在图纸标题栏及重要视图旁明确注明。
依据设备布置范围与视图数量确定图幅大小,常见图幅包括A0、A1、A2等。若装置规模较小、设备布置简单,A2图幅即可满足需求;若为大型联合装置,可能需采用A0或A1图幅,甚至通过多张图纸拼接绘制。图幅选择需兼顾图纸内容完整性与图纸使用便利性,避免因图幅过小导致信息拥挤杂乱,或因图幅过大造成图纸使用不便。
② 分区
当设备布置区域较大、图纸内容复杂时,为便于图纸管理、查阅及施工定位,需对设备布置图进行分区。分区能将整体布局细化,使设计人员、施工人员快速锁定特定区域设备信息,提高工作效率。
③ 视图配置
设备布置图一般以平面图为主视图,必要时配置立面图或剖面图辅助表达。平面图展示设备在水平面上的布置情况,包括设备的平面位置、间距、操作通道、管廊走向等信息;立面图或剖面图则用于呈现设备在垂直方向的安装高度、设备与建筑结构的相对位置、管道连接高度等内容。
案例:化工车间蒸馏单元
装置包含2台蒸馏塔(高8m)、4台换热器、6台机泵,配套管廊(宽3m×长20m)及操作平台,布置在150㎡的车间内。设备分层布置(塔器底部设支撑平台,二层为换热器),需展示平面、立面及局部剖面图。
图幅选择A1图幅(594mm×841mm)横向绘制,包含:
平面布置图:标注设备坐标、管廊支柱位置、操作通道及安全间距(如防火间距)。
立面剖视图:沿管廊轴线剖切,展示塔器高度、换热器安装标高、管道上下层走向。
比例:主图1:100,局部放大1:50,确保复杂区域细节清晰。
2)设备表示方法
在工程图纸及相关技术文档中,设备的表示方法有着严谨且规范的要求,主要分为定型设备和非定型设备的表达,以及多台同一位号设备的处理方式,同时还需配合设备一览表来完整呈现信息:
① 定型设备:指按照国家或行业统一标准、规格进行生产制造的设备,具有标准化的外形尺寸、性能参数和接口形式。在图纸中,定型设备通常采用通用的图形符号表示,化工领域常依据《化工工艺设计施工图内容和深度统一规定》(HG 20519)等标准,机械行业则多遵循《机械制图》(GB/T 4457)系列国家标准 。
② 非定型设备:即根据特定工艺需求、特殊场地条件或个性化设计要求,单独进行设计和制造的设备,没有统一的标准规格。此类设备在图纸上需要详细绘制其外形轮廓、主要结构特征和关键尺寸。
③ 同一位号的多台设备:对于同一位号的多台设备,在图纸上为了既能清晰表达设备布局,又能避免重复绘制造成图纸繁杂,通常采用简化表示方法。在图上可画出一台设备的外形,详细展现其结构和安装细节,其他相同设备可以只画出基础轮廓,用以表示设备的安装位置和占地面积;或者用双点画线绘制方框表示,方框内注明设备数量及位号。
④ 设备一览表:设备一览表是对图纸中所有设备信息的系统性汇总,是工程图纸不可或缺的组成部分。它通常位于图纸的特定位置(如标题栏上方或单独的图纸页),以表格形式呈现。表格内容一般包括设备位号、设备名称、规格型号、主要技术参数(如设备尺寸、材质、操作温度、操作压力等)、数量、重量、安装高度等。

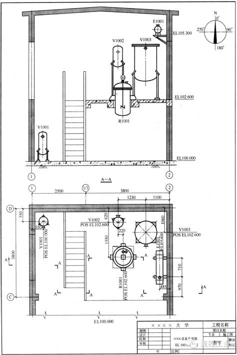
3 设备布置图的阅读

某物料残液蒸馏系统设备布置图样中有平面图和I-I剖面图。
按工艺要求,冷凝器E-0401架空,其物料出口的管口高于真空受液槽V-0408A和V-0408B的进料口,物料可以自流到V-0408A和V-0408B中,为便于E-0401的支承和避免遮挡窗户,将其靠墙并靠近建筑轴线②附件布置。为满足操作维修要求,各设备之间留有必要的间距。
剖面图表达了室内设备在立面上的位置关系,剖面图的剖切位置在平面图上I-I处,蒸馏釜和真空受槽A和B布置在标高为5m的楼面上,冷凝器布置在标高为6.95m处。
文章内容来源管道随手,流程工业整理编辑,责任编辑:胡静,审核人:李峥
版权声明∶转载流程工业网内容,请在正文上方注明来源和作者,且不得对内容作实质性改动;微信公众号、头条号等新媒体平台,转载请联系授权。邮箱∶process@vogel.com.cn,电话:16601379371(同微信)
中国江苏乐宝科技2025年6月5日表示,将向马来西亚EVE能源公司供应15.2万吨磷酸铁锂(LFP)材料。
2025-06-06 本网编辑
2026-05-09
2026-04-24
2026-05-07
2026-05-09
2026-05-06
2026-05-11
2026-04-23
工业是节能降碳的重点领域,也是实现“3060”碳达峰碳中和目标的关键。党的二十大报告明确提出,积极稳妥推进碳达峰碳中和,推进降碳、减污、扩绿、增长,完善能源消耗总量和强度调控,重点控制化石能源消费,逐步转向碳排放总量和强度“双控”制度。为了回顾 2023 年工业企业在节能降碳、绿色可持续发展方面的成就,了解当下的创新技术和应用,《流程工业》编辑部在 2024 年第一期特别策划了“工业碳中和”专题,邀请了一批国内外优秀的工业企业分享观点和产业实践,为广大的流程工业企业提供绿色可持续发展的启迪和借鉴。
作者:本刊编辑部
评论
加载更多